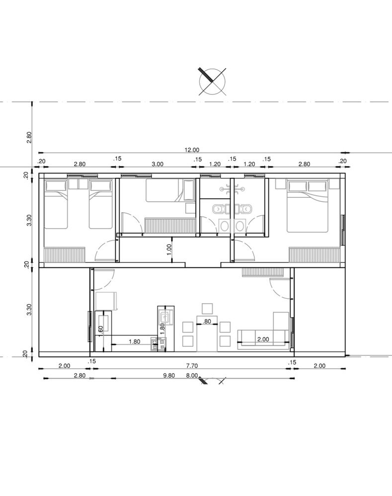
l modelo 70 m² es una vivienda pensada para familias que buscan más espacio, mayor comodidad y una distribución completa para el día a día. Su diseño combina ambientes amplios con una organización funcional que permite disfrutar de cada espacio del hogar.
Esta vivienda está diseñada para brindar comodidad a familias que necesitan varios dormitorios y mayor privacidad, manteniendo al mismo tiempo un área social integrada para compartir en familia.
La distribución del modelo incluye:
✔ 3 dormitorios
✔ 2 baños
✔ Living, comedor y cocina integrados
El modelo se entrega en obra gris en material, lo que incluye la estructura principal de la vivienda lista para continuar con las terminaciones según el gusto y el presupuesto de cada propietario. Esto permite que cada familia pueda personalizar su hogar y avanzar de manera progresiva con los detalles finales.
La construcción en material ofrece resistencia, durabilidad y bajo mantenimiento, garantizando una vivienda sólida y preparada para el paso del tiempo.
El modelo 70 m² es una excelente opción para familias que desean una casa más completa, con mayor cantidad de ambientes y espacios cómodos para vivir.
📲 Si querés conocer más detalles sobre este modelo o consultar disponibilidad de cupos de construcción, escribinos por WhatsApp al 3764 53-7170.










