El modelo 42 m² es una vivienda pensada para quienes buscan una casa funcional, cómoda y accesible, ideal para parejas o familias pequeñas que quieren comenzar su proyecto de vivienda propia.
Su diseño optimiza el espacio para ofrecer ambientes prácticos y bien distribuidos, logrando una casa compacta pero confortable para el día a día.
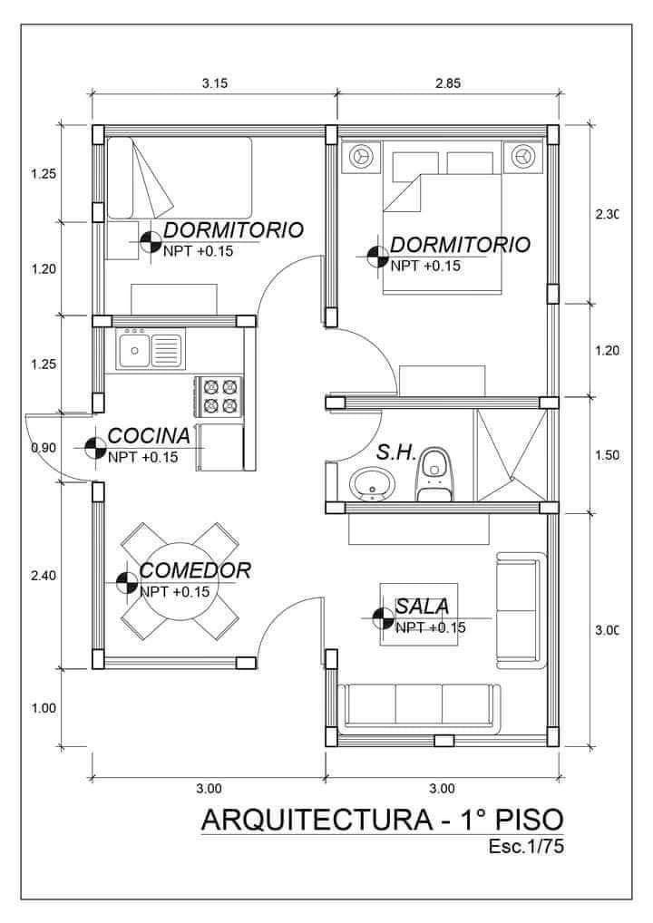
La vivienda cuenta con una distribución que incluye:
✔ 2 dormitorios
✔ 1 baño completo
✔ Living, comedor y cocina integrados
Este modelo se entrega en obra gris en material, lo que incluye la estructura principal de la vivienda lista para continuar con las terminaciones según el gusto y el presupuesto de cada propietario. De esta manera, cada familia puede avanzar con los detalles interiores y exteriores de forma progresiva.
La construcción en material ofrece resistencia, durabilidad y bajo mantenimiento, convirtiendo a este modelo en una excelente opción para quienes buscan una vivienda sólida y práctica.
El modelo 42 m² es una alternativa ideal para comenzar con una casa cómoda, con los ambientes necesarios para una familia, y con la posibilidad de seguir creciendo en el futuro.
📲 Si querés conocer más detalles o consultar disponibilidad de cupos de construcción, escribinos por WhatsApp al 3764 53-7170.










